Suivez-nous sur

06 16 65 45 93
33000 Bordeaux

2 terrasses - Parking - traversant


< Retour

Partager sur

gallery loader
Coup de coeur

Appartement 164 m² - 4 Pièces - Bordeaux 1 050 000


Description de l'offre Ref 2601-IC-201


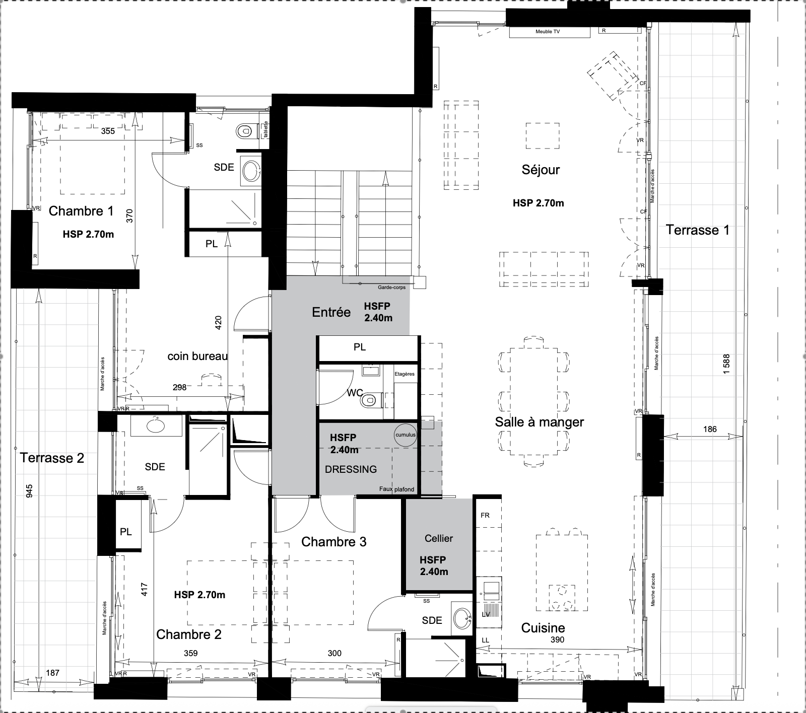
Situé rue de Marseille, au sein d’une petite résidence intimiste de seulement 11 appartements aux prestations haut de gamme, découvrez ce bien rare occupant seul le dernier étage de l’immeuble.   Entièrement rénové avec des prestations d’exception, cet appartement conjugue avec élégance le charme de l’ancien et le confort contemporain. Traversant et baigné de lumière, il bénéficie d’une exposition plein sud idéale.   Dès l’entrée, vous êtes accueilli par un espace fonctionnel avec placard intégré. La pièce de vie spectaculaire, d’une superficie généreuse de 73m2, s’ouvre sur une magnifique terrasse, offrant un espace extérieur rare et privilégié, parfait pour recevoir ou profiter de moments de détente en toute intimité.   L’espace nuit se compose de trois grandes chambres, chacune disposant de sa propre salle d’eau, garantissant confort et indépendance à tous les occupants. L’une des chambres bénéficie d’un dressing, et un coin bureau complète harmonieusement l’agencement. Deux WC viennent parfaire la fonctionnalité de l’ensemble.   L’appartement séduit par sa luminosité exceptionnelle, ses volumes, son calme absolu et son caractère unique - Appartement traversant! Cellier   Enfin, une place de parking sécurisée complète ce bien d’exception.   Un appartement rare sur le marché, idéal pour les amateurs de beaux volumes, de prestations haut de gamme et de tranquillité, dans un environnement recherché.  

Diagnostics de performance énergétique


DPE
DPE
DPE ANCIENNE VERSION

Descriptif du bien


Code postal 33000


Surface habitable (m²) 164 m²


Surface loi Carrez (m²) 164 m²


Nombre de chambre(s) 3


Nombre de pièces 4


Etage 2


Nb de salle d'eau 3


Cuisine AMERICAINE


Mode de chauffage Gaz de ville


Type de chauffage Radiateur


Format de chauffage Individuel


Terrasse OUI


Nombre de parking 1


Exposition SUD


Année de construction 2024


Copropriété OUI


Lot n° C201


Prix de vente honoraires TTC inclus 1 050 000 €


Cette annonce vous intéresse ?


* Champs obligatoires

* : Les informations recueillies sur ce formulaire sont enregistrées dans un fichier informatisé par La Boite Immo agissant comme Sous-traitant du traitement pour la gestion de la clientèle/prospects de l'Agence / du Réseau qui reste Responsable du Traitement de vos Données personnelles. La base légale du traitement repose sur l'intérêt légitime de l'Agence / du Réseau. Elles sont conservées jusqu'à demande de suppression et sont destinées à l'Agence / au Réseau. Conformément à la loi « informatique et libertés », vous disposez des droits d’accès, de rectification, d’effacement, d’opposition, de limitation et de portabilité de vos données. Vous pouvez retirer votre consentement à tout moment en contactant directement l’Agence / Le Réseau. Consultez le site https://cnil.fr/fr pour plus d’informations sur vos droits. Si vous estimez, après avoir contacté l'Agence / le Réseau, que vos droits « Informatique et Libertés » ne sont pas respectés, vous pouvez adresser une réclamation à la CNIL. Nous vous informons de l’existence de la liste d'opposition au démarchage téléphonique « Bloctel », sur laquelle vous pouvez vous inscrire ici : https://www.bloctel.gouv.fr Dans le cadre de la protection des Données personnelles, nous vous invitons à ne pas inscrire de Données sensibles dans le champ de saisie libre.
Ce site est protégé par reCAPTCHA, les Politiques de Confidentialité et les Conditions d'Utilisation de Google s'appliquent.