Suivez-nous sur

06 16 65 45 93
33000 Bordeaux

Appartement lumineux avec terrasse – Parking en sous-sol - Notaire Offert


< Retour

Partager sur

gallery loader

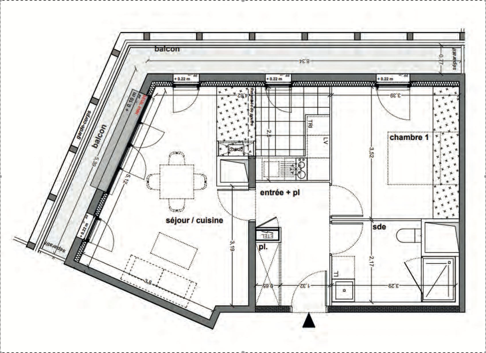
Appartement 49.29 m² - 2 Pièces - Mérignac 256 000


Description de l'offre Ref 1602-SOG-MIR-C303


Situé au 3ᵉ étage, à proximité du Parc Mirepin, découvrez ce bel appartement fonctionnel et lumineux, idéal pour une résidence principale ou un premier achat. Les atouts du bien : ·Superbe terrasse de 11 m² pour profiter des beaux jours ·Grande ouverture dans le salon, offrant un maximum de lumière naturelle ·Chambre avec accès direct au balcon ·Entrée avec grand placard pour un rangement optimal ·Salle de bain moderne avec douche à l’italienne, WC et emplacement pour machine à laver ·Place de parking en sous-sol sécurisée Frais de notaire OFFERTS! Appartement bien agencé, agréable à vivre et baigné de lumière. Pour plus d’informations ou organiser une visite, contactez-moi !

Diagnostics de performance énergétique


DPE
DPE
DPE ANCIENNE VERSION

Descriptif du bien


Code postal 33700


Surface habitable (m²) 49,29 m²


Surface loi Carrez (m²) 43,29 m²


Nombre de chambre(s) 1


Nombre de pièces 2


Etage 3


Ascenseur OUI


Nb de salle d'eau 1


Cuisine AMERICAINE


Mode de chauffage Gaz de ville


Type de chauffage Radiateur


Format de chauffage Individuel


Balcon OUI


Terrasse OUI


Exposition NORD-OUEST


Année de construction 2025


Copropriété NON


Prix de vente honoraires TTC inclus 256 000 €


Cette annonce vous intéresse ?


* Champs obligatoires

* : Les informations recueillies sur ce formulaire sont enregistrées dans un fichier informatisé par La Boite Immo agissant comme Sous-traitant du traitement pour la gestion de la clientèle/prospects de l'Agence / du Réseau qui reste Responsable du Traitement de vos Données personnelles. La base légale du traitement repose sur l'intérêt légitime de l'Agence / du Réseau. Elles sont conservées jusqu'à demande de suppression et sont destinées à l'Agence / au Réseau. Conformément à la loi « informatique et libertés », vous disposez des droits d’accès, de rectification, d’effacement, d’opposition, de limitation et de portabilité de vos données. Vous pouvez retirer votre consentement à tout moment en contactant directement l’Agence / Le Réseau. Consultez le site https://cnil.fr/fr pour plus d’informations sur vos droits. Si vous estimez, après avoir contacté l'Agence / le Réseau, que vos droits « Informatique et Libertés » ne sont pas respectés, vous pouvez adresser une réclamation à la CNIL. Nous vous informons de l’existence de la liste d'opposition au démarchage téléphonique « Bloctel », sur laquelle vous pouvez vous inscrire ici : https://www.bloctel.gouv.fr Dans le cadre de la protection des Données personnelles, nous vous invitons à ne pas inscrire de Données sensibles dans le champ de saisie libre.
Ce site est protégé par reCAPTCHA, les Politiques de Confidentialité et les Conditions d'Utilisation de Google s'appliquent.