Suivez-nous sur

06 16 65 45 93
33000 Bordeaux

Appartement lumineux avec terrasse – Parking en sous-sol - Notaire réduit


< Retour

Partager sur

gallery loader

Appartement 78 m² - 4 Pièces - Mérignac 355 000


Description de l'offre Ref 1702-SOG-EUP-C302


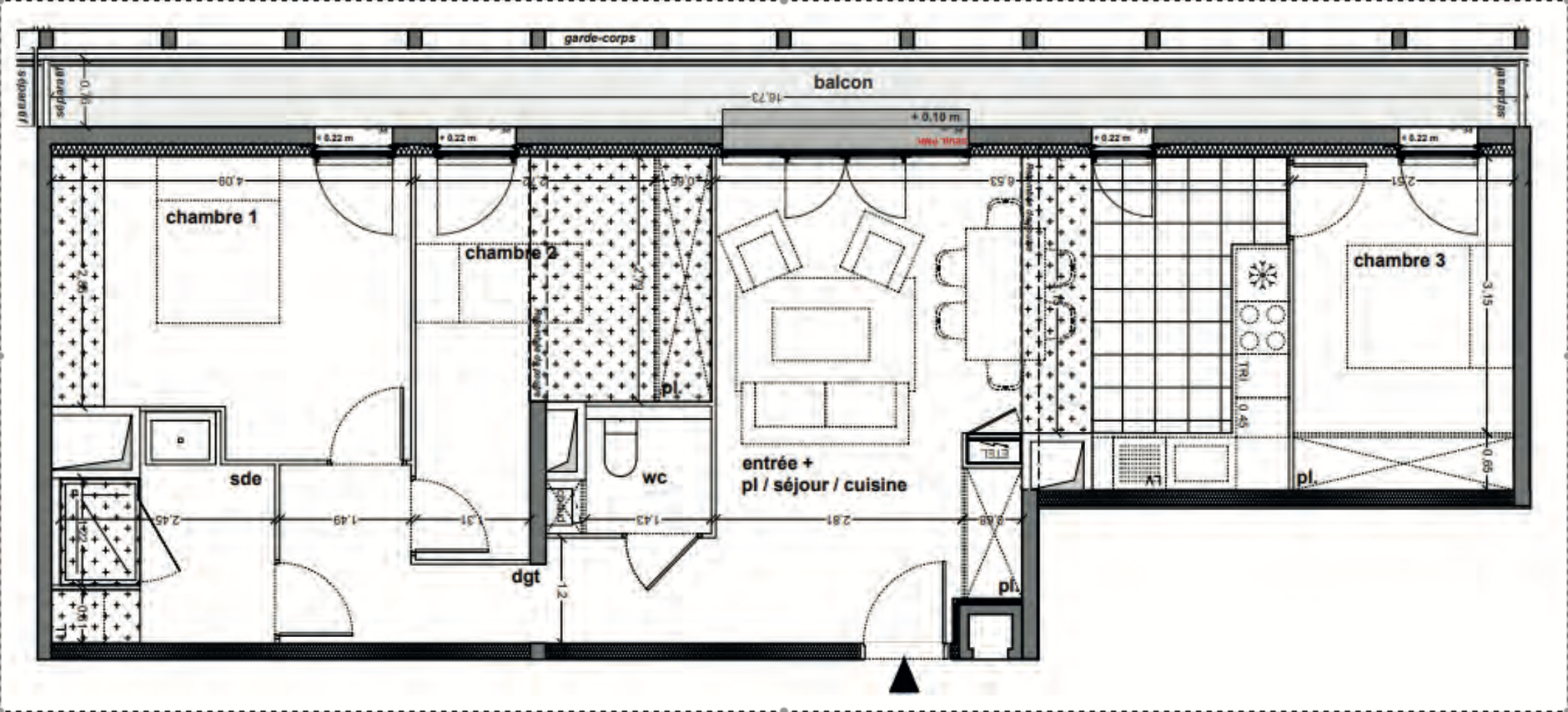
Duplex situé au sein d’une résidence prisée du Parc Mirepin, lumineux, traversant et plein de charme. Frais de notaire réduits ! 2 Parkings en sous-sol Au 3ème étage : Vous serez séduit par une superbe pièce de vie de 30 m², baignée de lumière, ouvrant sur une spacieuse terrasse de 12m², idéale pour vos moments de détente ou vos repas en extérieur. L’appartement est composé : -       Belle entrée spacieuse -       3 chambres avec chacune accès direct à la terrasse + placard -       Salle d’eau avec douche à l’italienne -       Un WC indépendant -       Une belle terrasse de plus de 20m2 Appartement très agréable à vivre, lumineux et fonctionnel — un bien rare à visiter sans tarder ! Contactez-moi pour plus d’informations ou pour organiser une visite.

Diagnostics de performance énergétique


DPE
DPE
DPE ANCIENNE VERSION

Descriptif du bien


Code postal 33700


Surface habitable (m²) 78 m²


Surface loi Carrez (m²) 79 m²


Nombre de chambre(s) 3


Nombre de pièces 4


Etage 3


Ascenseur OUI


Nb de salle d'eau 1


Cuisine AMERICAINE


Mode de chauffage Gaz de ville


Type de chauffage Radiateur


Format de chauffage Individuel


Balcon OUI


Terrasse OUI


Exposition SUD


Année de construction 2025


Copropriété NON


Prix de vente honoraires TTC inclus 355 000 €


Cette annonce vous intéresse ?


* Champs obligatoires

* : Les informations recueillies sur ce formulaire sont enregistrées dans un fichier informatisé par La Boite Immo agissant comme Sous-traitant du traitement pour la gestion de la clientèle/prospects de l'Agence / du Réseau qui reste Responsable du Traitement de vos Données personnelles. La base légale du traitement repose sur l'intérêt légitime de l'Agence / du Réseau. Elles sont conservées jusqu'à demande de suppression et sont destinées à l'Agence / au Réseau. Conformément à la loi « informatique et libertés », vous disposez des droits d’accès, de rectification, d’effacement, d’opposition, de limitation et de portabilité de vos données. Vous pouvez retirer votre consentement à tout moment en contactant directement l’Agence / Le Réseau. Consultez le site https://cnil.fr/fr pour plus d’informations sur vos droits. Si vous estimez, après avoir contacté l'Agence / le Réseau, que vos droits « Informatique et Libertés » ne sont pas respectés, vous pouvez adresser une réclamation à la CNIL. Nous vous informons de l’existence de la liste d'opposition au démarchage téléphonique « Bloctel », sur laquelle vous pouvez vous inscrire ici : https://www.bloctel.gouv.fr Dans le cadre de la protection des Données personnelles, nous vous invitons à ne pas inscrire de Données sensibles dans le champ de saisie libre.
Ce site est protégé par reCAPTCHA, les Politiques de Confidentialité et les Conditions d'Utilisation de Google s'appliquent.