Suivez-nous sur

06 16 65 45 93
33000 Bordeaux

Appartement lumineux avec terrasse – Parking en sous-sol - Notaire offert


< Retour

Partager sur

gallery loader

Duplex 78.32 m² - 4 Pièces - Mérignac 347 000


Description de l'offre Ref 1802-SOG-EUP-C302


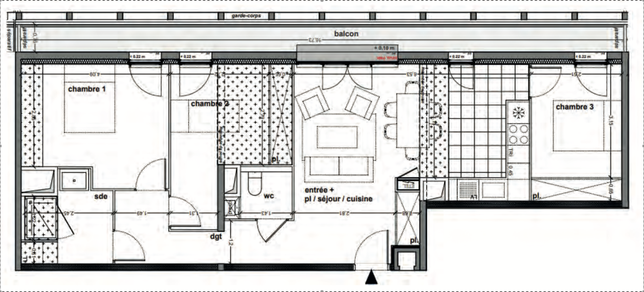
Duplex situé au sein d’une résidence prisée du Parc Mirepin, lumineux. Frais de notaire offerts ! 2 Parkings en sous-sol Au 3ème étage : Vous serez séduit par une superbe pièce de vie de 30 m², baignée de lumière, ouvrant sur un balcon de 12m². L’appartement est composé : -Belle entrée spacieuse -3 chambres avec chacune accès direct à la terrasse + placard -Salle d’eau avec douche à l’italienne -Un WC indépendant -Une belle terrasse de plus de 13m2 Appartement très agréable à vivre, lumineux et fonctionnel — un bien rare à visiter sans tarder ! Contactez-moi pour plus d’informations ou pour organiser une visite.

Diagnostics de performance énergétique


DPE
DPE
DPE ANCIENNE VERSION

Descriptif du bien


Code postal 33700


Surface habitable (m²) 78,32 m²


Surface loi Carrez (m²) 79 m²


Nombre de chambre(s) 3


Nombre de pièces 4


Etage 3


Ascenseur OUI


Nb de salle d'eau 1


Cuisine AMERICAINE


Mode de chauffage Gaz de ville


Type de chauffage Radiateur


Format de chauffage Individuel


Balcon OUI


Terrasse OUI


Exposition SUD


Année de construction 2025


Copropriété OUI


Lot n° C302


Prix de vente honoraires TTC inclus 347 000 €


Cette annonce vous intéresse ?


* Champs obligatoires

* : Les informations recueillies sur ce formulaire sont enregistrées dans un fichier informatisé par La Boite Immo agissant comme Sous-traitant du traitement pour la gestion de la clientèle/prospects de l'Agence / du Réseau qui reste Responsable du Traitement de vos Données personnelles. La base légale du traitement repose sur l'intérêt légitime de l'Agence / du Réseau. Elles sont conservées jusqu'à demande de suppression et sont destinées à l'Agence / au Réseau. Conformément à la loi « informatique et libertés », vous disposez des droits d’accès, de rectification, d’effacement, d’opposition, de limitation et de portabilité de vos données. Vous pouvez retirer votre consentement à tout moment en contactant directement l’Agence / Le Réseau. Consultez le site https://cnil.fr/fr pour plus d’informations sur vos droits. Si vous estimez, après avoir contacté l'Agence / le Réseau, que vos droits « Informatique et Libertés » ne sont pas respectés, vous pouvez adresser une réclamation à la CNIL. Nous vous informons de l’existence de la liste d'opposition au démarchage téléphonique « Bloctel », sur laquelle vous pouvez vous inscrire ici : https://www.bloctel.gouv.fr Dans le cadre de la protection des Données personnelles, nous vous invitons à ne pas inscrire de Données sensibles dans le champ de saisie libre.
Ce site est protégé par reCAPTCHA, les Politiques de Confidentialité et les Conditions d'Utilisation de Google s'appliquent.