Suivez-nous sur

06 16 65 45 93
33000 Bordeaux

Appartement lumineux avec terrasse – Parking en sous-sol - Notaire offert


< Retour

Partager sur

gallery loader

Appartement 90 m² - 4 Pièces - Mérignac 382 000


Description de l'offre Ref 0203-SO-EU-C308


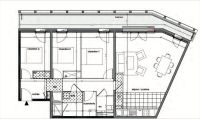
Situé au dernier étage d’une résidence prisée du Parc Mirepin Frais de notaire OFFERTS ! 2 Parkings en sous-sol Au 3ème étage : Vous serez séduit par une superbe pièce de vie de 37 m², baignée de lumière, ouvrant sur une spacieuse terrasse de 20m², idéale pour vos moments de détente ou vos repas en extérieur.   L’appartement est composé : -Belle entrée spacieuse -3 chambres avec chacune accès direct à la terrasse + placard -Salle d’eau avec douche à l’italienne -Un WC indépendant -Une belle terrasse de plus de 20m2 -Buanderie avec espace machine à laver Appartement très agréable à vivre, lumineux et fonctionnel! Contactez-moi pour plus d’informations ou pour organiser une visite.

Diagnostics de performance énergétique


DPE
DPE
DPE ANCIENNE VERSION

Descriptif du bien


Code postal 33700


Surface habitable (m²) 90 m²


Surface loi Carrez (m²) 90 m²


Nombre de chambre(s) 3


Nombre de pièces 4


Etage 3


Ascenseur OUI


Nb de salle d'eau 1


Cuisine AMERICAINE


Mode de chauffage Gaz de ville


Type de chauffage Radiateur


Format de chauffage Individuel


Balcon OUI


Terrasse OUI


Exposition EST


Année de construction 2025


Copropriété NON


Prix de vente honoraires TTC inclus 382 000 €


Cette annonce vous intéresse ?


* Champs obligatoires

* : Les informations recueillies sur ce formulaire sont enregistrées dans un fichier informatisé par La Boite Immo agissant comme Sous-traitant du traitement pour la gestion de la clientèle/prospects de l'Agence / du Réseau qui reste Responsable du Traitement de vos Données personnelles. La base légale du traitement repose sur l'intérêt légitime de l'Agence / du Réseau. Elles sont conservées jusqu'à demande de suppression et sont destinées à l'Agence / au Réseau. Conformément à la loi « informatique et libertés », vous disposez des droits d’accès, de rectification, d’effacement, d’opposition, de limitation et de portabilité de vos données. Vous pouvez retirer votre consentement à tout moment en contactant directement l’Agence / Le Réseau. Consultez le site https://cnil.fr/fr pour plus d’informations sur vos droits. Si vous estimez, après avoir contacté l'Agence / le Réseau, que vos droits « Informatique et Libertés » ne sont pas respectés, vous pouvez adresser une réclamation à la CNIL. Nous vous informons de l’existence de la liste d'opposition au démarchage téléphonique « Bloctel », sur laquelle vous pouvez vous inscrire ici : https://www.bloctel.gouv.fr Dans le cadre de la protection des Données personnelles, nous vous invitons à ne pas inscrire de Données sensibles dans le champ de saisie libre.
Ce site est protégé par reCAPTCHA, les Politiques de Confidentialité et les Conditions d'Utilisation de Google s'appliquent.