Suivez-nous sur

06 16 65 45 93
33000 Bordeaux

Dernier étage - Terrasse - Parking - Notaire réduit


< Retour

Partager sur

gallery loader

Appartement 49 m² - 2 Pièces - Bordeaux 257 500


Description de l'offre Ref 0203-MAR-PUL-906A


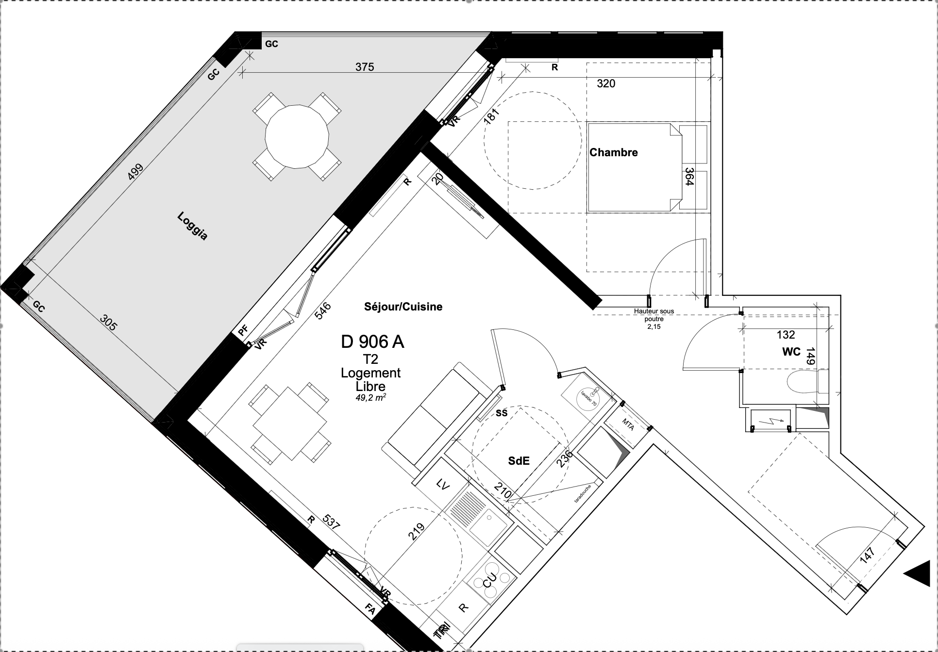
Situé au dernier étage d’une résidence récente, cet appartement lumineux offre un cadre de vie confortable et pratique, idéal en résidence principale. Frais de notaire réduits ! Les atouts du bien : ·Belle pièce de vie de 32 m², baignée de lumière ·Grande terrasse de 20 m², parfaite pour vos moments de détente ·Chambre de 12 m² avec espace confortable ·Salle d’eau spacieuse ·WC séparé pour plus de confort au quotidien ·Place de parking sécurisée incluse Emplacement privilégié : commerces et tramway au pied de la résidence, facilitant tous vos déplacements et votre quotidien. Frais de notaire réduits, idéal pour optimiser votre acquisition. Un bien rare, alliant luminosité, extérieur généreux et accessibilité. Contactez-moi pour plus d’informations ou organiser une visite.

Diagnostics de performance énergétique


DPE
DPE
DPE ANCIENNE VERSION

Descriptif du bien


Code postal 33800


Surface habitable (m²) 49 m²


Surface loi Carrez (m²) 49,20 m²


Nombre de chambre(s) 1


Nombre de pièces 2


Etage 9


Ascenseur OUI


Nb de salle de bains 1


Mode de chauffage Gaz de ville


Type de chauffage Radiateur


Format de chauffage Individuel


Terrasse OUI


Exposition OUEST


Année de construction 2025


Copropriété OUI


Lot n° 906A


Prix de vente honoraires TTC inclus 257 500 €


Cette annonce vous intéresse ?


* Champs obligatoires

* : Les informations recueillies sur ce formulaire sont enregistrées dans un fichier informatisé par La Boite Immo agissant comme Sous-traitant du traitement pour la gestion de la clientèle/prospects de l'Agence / du Réseau qui reste Responsable du Traitement de vos Données personnelles. La base légale du traitement repose sur l'intérêt légitime de l'Agence / du Réseau. Elles sont conservées jusqu'à demande de suppression et sont destinées à l'Agence / au Réseau. Conformément à la loi « informatique et libertés », vous disposez des droits d’accès, de rectification, d’effacement, d’opposition, de limitation et de portabilité de vos données. Vous pouvez retirer votre consentement à tout moment en contactant directement l’Agence / Le Réseau. Consultez le site https://cnil.fr/fr pour plus d’informations sur vos droits. Si vous estimez, après avoir contacté l'Agence / le Réseau, que vos droits « Informatique et Libertés » ne sont pas respectés, vous pouvez adresser une réclamation à la CNIL. Nous vous informons de l’existence de la liste d'opposition au démarchage téléphonique « Bloctel », sur laquelle vous pouvez vous inscrire ici : https://www.bloctel.gouv.fr Dans le cadre de la protection des Données personnelles, nous vous invitons à ne pas inscrire de Données sensibles dans le champ de saisie libre.
Ce site est protégé par reCAPTCHA, les Politiques de Confidentialité et les Conditions d'Utilisation de Google s'appliquent.