Suivez-nous sur

06 16 65 45 93
33000 Bordeaux

Notaire offert - Lumineux et calme


< Retour

Partager sur

gallery loader

Appartement 62 m² - 3 Pièces - Bordeaux 287 000


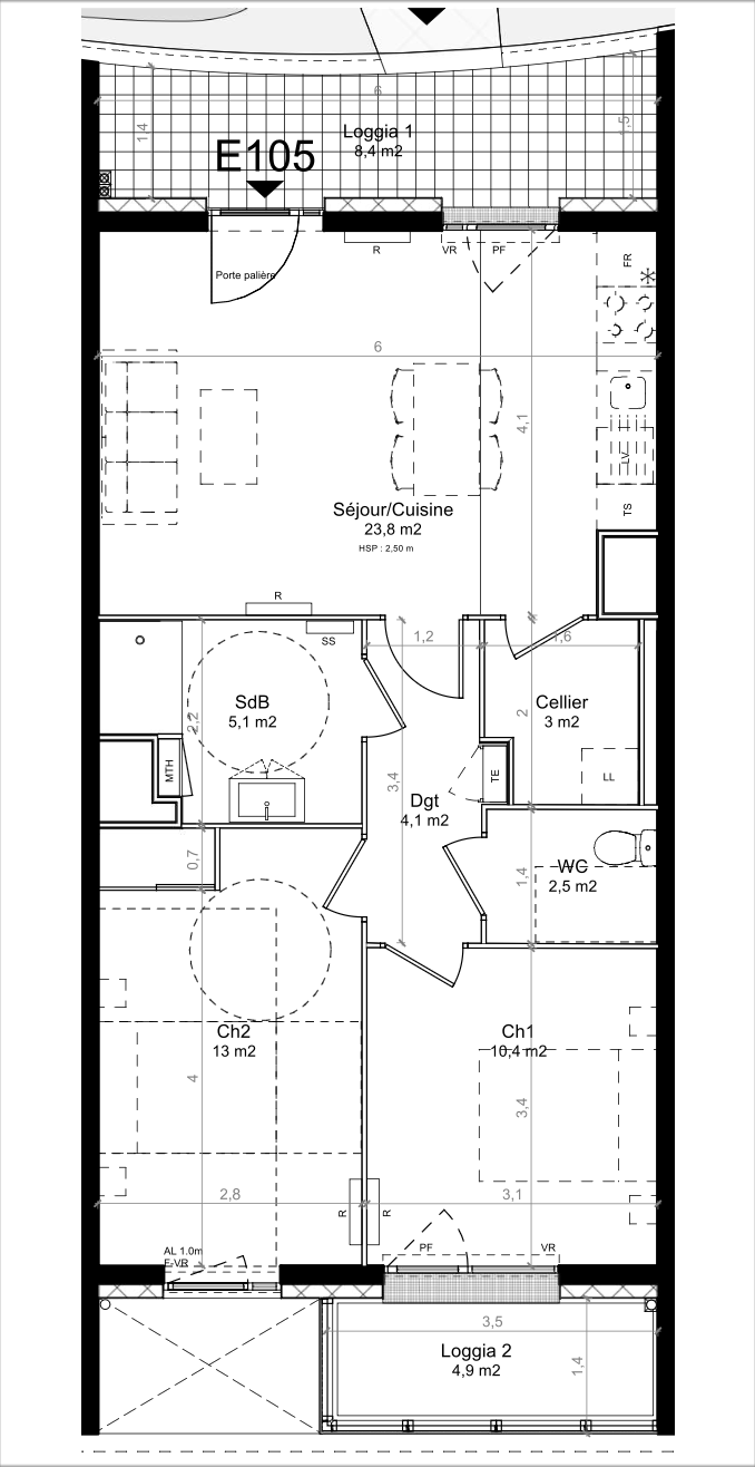
Description de l'offre Ref 2704-MAR-HOM-E105


Appartements aux portes de Darwin à visiter dès maintenant! Profitez d’un emplacement exceptionnel dans un secteur recherché, à proximité immédiate de Darwin, avec commerces et transports au pied de la résidence pour un quotidien pratique et agréable. Découvrez une sélection d’appartements spacieux et lumineux, du T1 au T5, adaptés à tous les projets de vie. Plusieurs configurations sont disponibles selon vos envies : - Appartements avec terrasse - Stationnement privatif - Différents étages et expositions - Prestations de qualité   Offre exclusive : frais de notaire offerts ! Que vous recherchiez un premier achat, un appartement familial ou un investissement, je vous accompagne pour trouver le bien qui correspond parfaitement à vos besoins parmi les différentes opportunités disponibles. Contactez-moi pour plus d’informations et trouvons ensemble l’appartement qui vous correspond le mieux.

Diagnostics de performance énergétique


DPE
DPE
DPE ANCIENNE VERSION

Descriptif du bien


Code postal 33100


Surface habitable (m²) 62 m²


Surface loi Carrez (m²) 62 m²


Nombre de chambre(s) 2


Nombre de pièces 3


Etage 1


Ascenseur OUI


Nb de salle d'eau 1


Mode de chauffage Gaz de ville


Type de chauffage Radiateur


Format de chauffage Individuel


Balcon NON


Terrasse OUI


Cave NON


Exposition NORD-EST


Année de construction 2026


Copropriété NON


Prix de vente honoraires TTC inclus 287 000 €


Cette annonce vous intéresse ?


* Champs obligatoires

* : Les informations recueillies sur ce formulaire sont enregistrées dans un fichier informatisé par La Boite Immo agissant comme Sous-traitant du traitement pour la gestion de la clientèle/prospects de l'Agence / du Réseau qui reste Responsable du Traitement de vos Données personnelles. La base légale du traitement repose sur l'intérêt légitime de l'Agence / du Réseau. Elles sont conservées jusqu'à demande de suppression et sont destinées à l'Agence / au Réseau. Conformément à la loi « informatique et libertés », vous disposez des droits d’accès, de rectification, d’effacement, d’opposition, de limitation et de portabilité de vos données. Vous pouvez retirer votre consentement à tout moment en contactant directement l’Agence / Le Réseau. Consultez le site https://cnil.fr/fr pour plus d’informations sur vos droits. Si vous estimez, après avoir contacté l'Agence / le Réseau, que vos droits « Informatique et Libertés » ne sont pas respectés, vous pouvez adresser une réclamation à la CNIL. Nous vous informons de l’existence de la liste d'opposition au démarchage téléphonique « Bloctel », sur laquelle vous pouvez vous inscrire ici : https://www.bloctel.gouv.fr Dans le cadre de la protection des Données personnelles, nous vous invitons à ne pas inscrire de Données sensibles dans le champ de saisie libre.
Ce site est protégé par reCAPTCHA, les Politiques de Confidentialité et les Conditions d'Utilisation de Google s'appliquent.